Kontakt
Zapraszamy do kontaktu:
Konstrukcje stalowe - Jakub:
+48 789-217-065
Płyty warstwowe - Agata:
+48 786-865-921
Blacha trapezowa - Jarosław:
+48 780-140-207
Producenci
SESTAL Dom Modułowy LGS 70m2 Całoroczny - Nowoczesna Konstrukcja Stalowa - Producent
Cena regularna:
Cena regularna:
towar niedostępny
0
Opis
Marzysz o własnym domku na działce?
Mamy coś dla Ciebie – nowoczesny i praktyczny dom 70 m², który złożysz sam! bez problemów, bez komplikacji a co najważniejsze bez ciężkich dźwigów czy specjalistycznych sprzętów
A co w środku?
PRZEDEWSZYSTKIM NAJNOWSZA TECHNOLOGIA LGS NA RYNKU !!!
Konstrukcja w systemie LGS , jest to technologia oparta na precyzyjnie projektowanych oraz cyfrowo ciętych profilach ze stali zimno giętej. Konstrukcja ta zapewnia wysoki parametr nośności przy bardzo niskiej masie a jej powtarzalność zdecydowanie skraca każdą realizację oraz ułatwia montaż. Jest to kierunek który realnie zmienia sposób projektowania oraz wykonywania współczesnych konstrukcji .
CECHĄ PRODUKTU JEST :
1. Bardzo szybki czas realizacji
2. Niska masa konstrukcji
3. Bardzo duża precyzja i powtarzalność
4 Wysoka wytrzymałość i trwałość
5. Znakomita odporność na ogień
6.Ekologiczny i zrównoważony system
7. Bardzo duża elastyczność projektowa
A co najważniejsza nasza konstrukcja posiada gotowe - przygotowane otwory techniczne dla instalatorów pod wszystkich instalacja wod-kan cy elektryczne . Zero bruzdowania ! zero wiercenia ! zero przekuć ! Tylko czysta robota !
Konstrukcja dostępna w
- stali nierdzewnej
- stali ocynkowanej
- stali z powłoką galwaniczną typu MAGNELIS
a wszystko w gatunku S350 - S550 GD
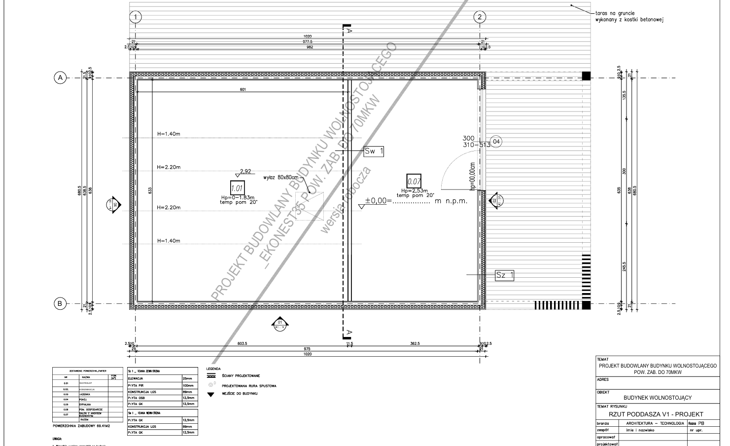
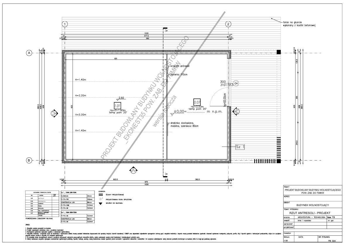
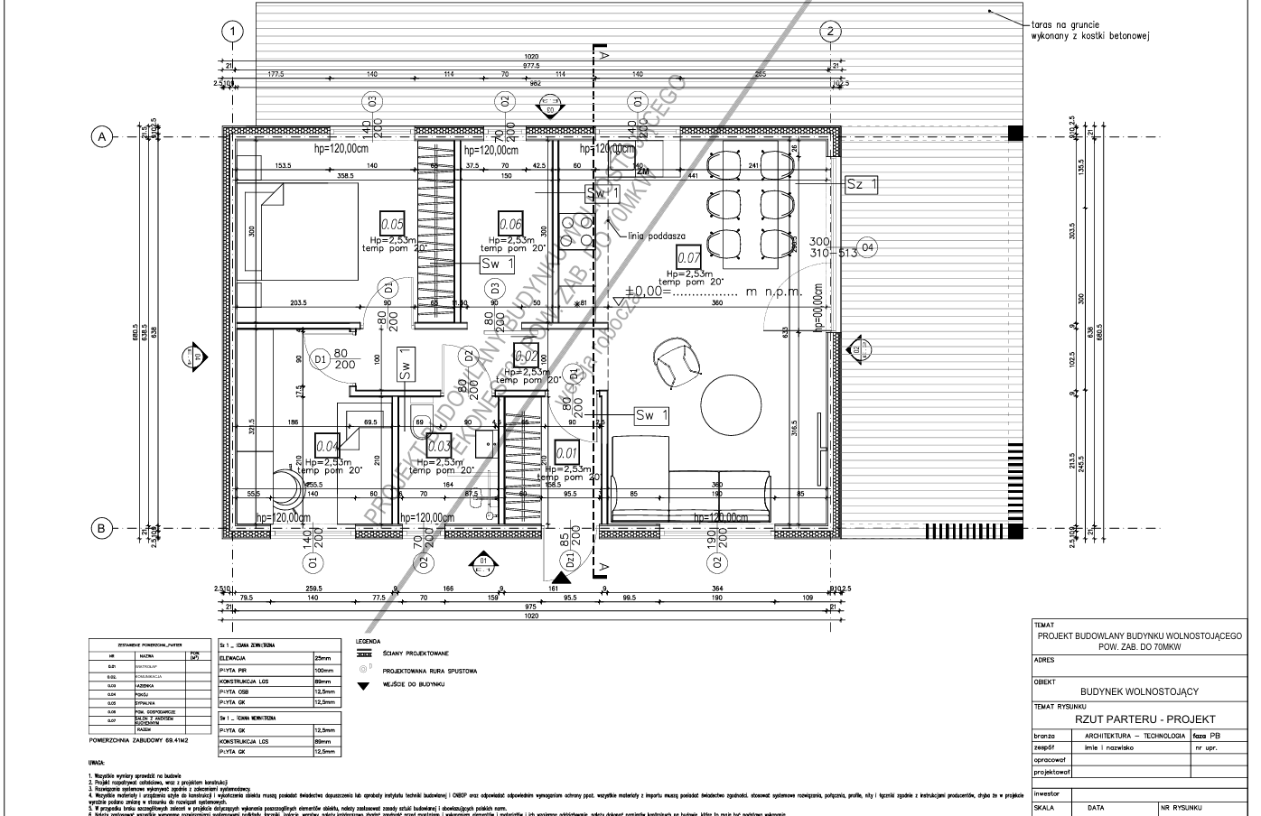
PARTER
• Salon, jadalnia wraz z aneksem kuchennym
• pokój
• pomieszczenie gospodarcze
• łazienka
• p.pokój
• pomieszczenie gospodarcze
• wiatrołap
CENA ZAWIERA !:
• Kompletną w pełni certyfikowaną stalową konstrukcję
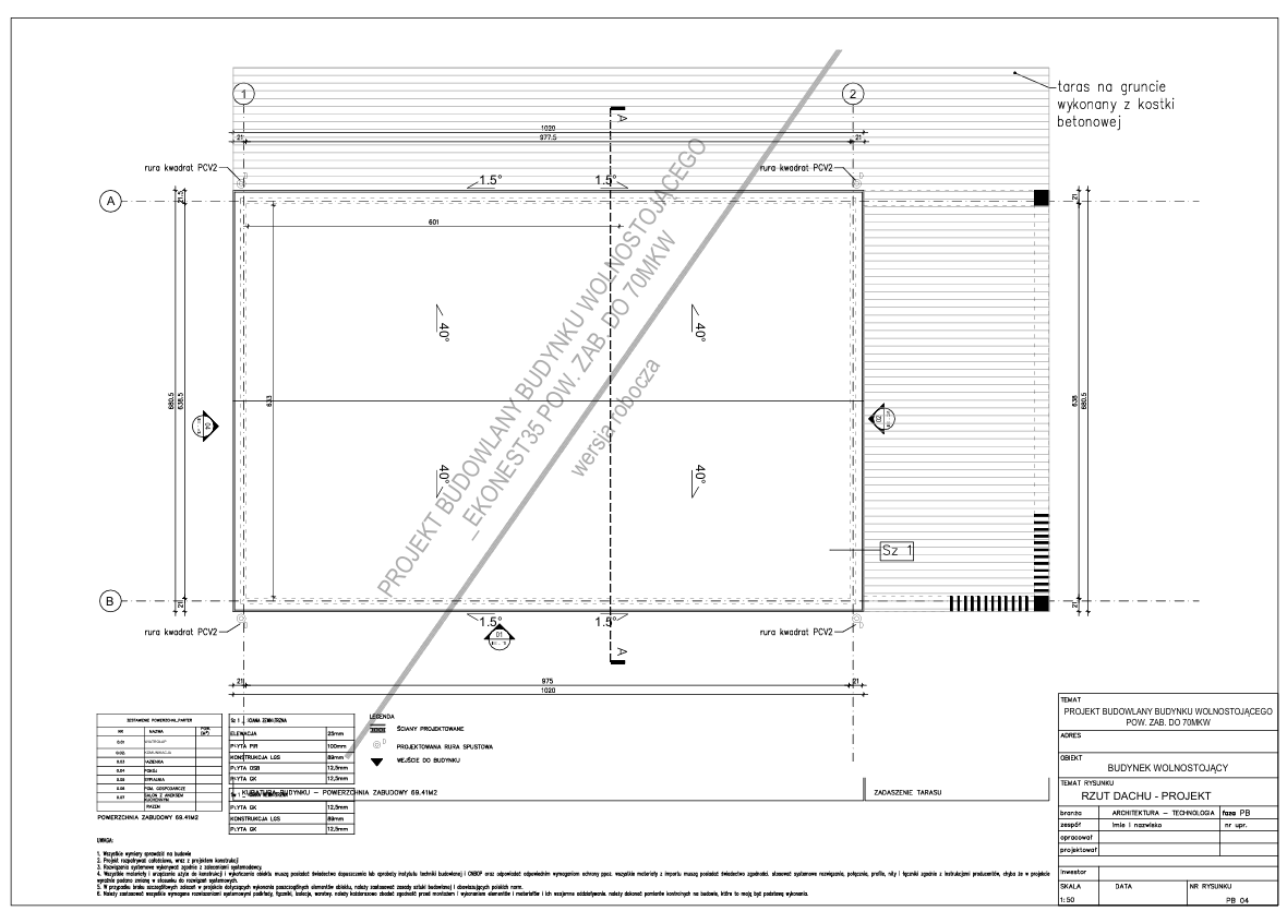
• IZOLACJA DACH oraz ŚCIANY płytą warstwową do wyboru (wełna lub PIR) w grubości 120mm (dostępne również izolacje 140mm , 160mm , 180 mm , 200 mm)
• Energooszczędne okna w pakiecie 3-szybowym !
• Elewację zewnętrzną wykonaną z blachy trapezowej TR 6, TR 14 , TR18 lub na klik (gładka lub mikrofala) jako wykończenie elewacji
• KPL. Obróbek blacharskich
• projekt , Instrukcję + wsparcie techniczne
Świetny jako:
Dom całoroczny lub domek letniskowy na działkę rekreacyjną
Cena obejmuje kompletny produkt bez montażu
Transport : wycena
